



一、GXF、SJG系列斜流式通风机概述
GXF、SJG系列斜流式通风机是由上海交通大学与本公司联合研制开发。GXF斜流式通风机是一种新型低噪高效节能型斜流式通风机,斜流式通风机流量大于离心式风机,全压高于轴流式风机,体积小于离心式风机。该风机通过了模拟机的实验研究,采用新的叶型及叶片,从而得到了更大的流量和压力,提高了风机的效率。SJC系列斜流式通风机是SWF系列风机的派生型产品,采用鼓型风筒,从而改变气流方向达到斜流动,兼有离心式风机的压力系数较高和轴流式风机流量系数较高的特点,具有噪声低、耗电省、结构紧凑等优点。广泛应用于工矿企业、宾馆、饭店、博物馆等的送排风系统。
GXF系列斜流通风机按叶轮直径分为300-1400mm十六种规格,按类型分A、B、C、D、E、F、S七种类型,共五十八个机号。风量由1500-90000m3/h,全压由185-2500pa;这样就给设计部门和用户单位提供了充分的选择条件,具体数据参照风机性能参数表。
SJG系列斜流式通风机按叶轮直径分为200-800mm十几种规格、机号,风量由200-2500m3/h,全压由50-1200pa;具体数据请查风机性能参数表。
风机材质有钢制、玻璃钢,也可根据用户要求,进行防爆处理。
二、GXF、SJG系列斜流式通风机型号说明

三、GXF系列斜流风机性能参数表
机号 | 叶轮直径 (mm) | 风量(m3/h) | 全压 (Pa) | 功率(kw) | 转速 (r/min) | 噪声 dB(A) | 重量 (kg) |
3A | 300 | 2352 | 115 | 0.18 | 1450 | 69 | 26 |
2234 | 138 | ||||||
1960 | 156 | ||||||
1764 | 162 | ||||||
1588 | 165 | ||||||
3.5A | 350 | 3600 | 118 | 0.25 | 1450 | 69 | 30 |
3420 | 135 | ||||||
3000 | 160 | ||||||
2700 | 166 | ||||||
2430 | 170 | ||||||
4A | 400 | 3984 | 164 | 0.37 | 1450 | 71 | 34 |
3785 | 187 | ||||||
3320 | 220 | ||||||
2988 | 235 | ||||||
2689 | 242 | ||||||
4.5A | 450 | 5544 | 183 | 0.55 | 1450 | 72 | 41 |
5267 | 208 | ||||||
4620 | 245 | ||||||
4158 | 262 | ||||||
3742 | 270 | ||||||
5A | 500 | 5232 | 264 | 0.75 | 1450 | 75 | 52 |
4970 | 310 | ||||||
4360 | 360 | ||||||
3924 | 385 | ||||||
3532 | 396 | ||||||
5.5A | 550 | 6384 | 330 | 1.1 | 1450 | 77 | 66 |
6065 | 378 | ||||||
5320 | 440 | ||||||
4788 | 471 | ||||||
4309 | 484 | ||||||
6A | 600 | 9120 | 338 | 1.5 | 1450 | 78 | 67 |
8664 | 387 | ||||||
7600 | 450 | ||||||
6840 | 482 | ||||||
6165 | 495 | ||||||
6.5A | 650 | 14880 | 291 | 2.2 | 960 | 79 | 96 |
14135 | 334 | ||||||
12400 | 386 | ||||||
11160 | 405 | ||||||
10044 | 413 |
机号 | 叶轮直径 (mm) | 风量(m3/h) | 全压 (Pa) | 功率(kw) | 转速 (r/min) | 噪声 dB(A) | 重量 (kg) |
7A | 700 | 16800 | 371 | 3 | 960 | 82 | 129 |
15960 | 426 | ||||||
14000 | 492 | ||||||
12600 | 517 | ||||||
11340 | 526 | ||||||
8A | 800 | 22080 | 387 | 4 | 960 | 83 | 149 |
20976 | 443 | ||||||
18400 | 512 | ||||||
16560 | 553 | ||||||
14904 | 568 | ||||||
9A | 900 | 26160 | 464 | 5.5 | 960 | 84 | 200 |
24852 | 531 | ||||||
21800 | 610 | ||||||
19620 | 665 | ||||||
17658 | 683 | ||||||
10A | 1000 | 30240 | 555 | 7.5 | 960 | 86 | 290 |
28728 | 635 | ||||||
25200 | 730 | ||||||
22680 | 796 | ||||||
20412 | 818 | ||||||
11A | 1100 | 33067 | 570 | 7.5 | 960 | 86 | 307 |
31413 | 653 | ||||||
27556 | 750 | ||||||
24800 | 818 | ||||||
22320 | 840 | ||||||
12A | 1200 | 38880 | 646 | 11 | 960 | 88 | 362 |
36936 | 740 | ||||||
32400 | 850 | ||||||
29160 | 927 | ||||||
26244 | 952 | ||||||
13A | 1300 | 51600 | 676 | 15 | 960 | 89 | 448 |
49020 | 774 | ||||||
43000 | 890 | ||||||
38700 | 970 | ||||||
34830 | 997 | ||||||
14A | 1400 | 60000 | 722 | 18.5 | 720 | 90 | 659 |
57000 | 827 | ||||||
50000 | 950 | ||||||
45000 | 1036 | ||||||
40500 | 1064 |
GXF-B型斜流风机性能参数表
机号 | 叶轮直径 (mm) | 风量(m3/h) | 全压 (Pa) | 功率(kw) | 转速 (r/min) | 噪声 dB(A) | 重量 (kg) |
3B | 300 | 2064 | 126 | 0.18 | 1450 | 68 | 26 |
1961 | 144 | ||||||
1720 | 170 | ||||||
1548 | 177 | ||||||
1393 | 180 | ||||||
3.5B | 350 | 3048 | 141 | 0.25 | 1450 | 70 | 30 |
2896 | 161 | ||||||
2540 | 190 | ||||||
2286 | 198 | ||||||
2057 | 201 | ||||||
4B | 400 | 3480 | 186 | 0.37 | 1450 | 71 | 34 |
3306 | 213 | ||||||
2900 | 250 | ||||||
2610 | 268 | ||||||
2349 | 275 | ||||||
4.5B | 450 | 4380 | 231 | 0.55 | 1450 | 73 | 41 |
4161 | 264 | ||||||
3650 | 310 | ||||||
3285 | 322 | ||||||
2957 | 329 | ||||||
5B | 500 | 6864 | 300 | 1.1 | 1450 | 77 | 56 |
6521 | 344 | ||||||
5720 | 400 | ||||||
5148 | 428 | ||||||
4633 | 440 | ||||||
5.5B | 550 | 7680 | 371 | 1.5 | 1450 | 79 | 70 |
7296 | 426 | ||||||
6400 | 495 | ||||||
5760 | 515 | ||||||
5184 | 525 | ||||||
6B | 600 | 11280 | 375 | 2.2 | 1450 | 80 | 81 |
10716 | 430 | ||||||
9400 | 500 | ||||||
8460 | 535 | ||||||
7614 | 550 | ||||||
6.5B | 650 | 3680 | 430 | 3 | 1450 | 82 | 89 |
2996 | 493 | ||||||
11400 | 570 | ||||||
10260 | 616 | ||||||
9234 | 633 |
机号 | 叶轮直径 (mm) | 风量(m3/h) | 全压 (Pa) | 功率(kw) | 转速 (r/min) | 噪声 dB(A) | 重量 (kg) |
7B | 700 | 19680 | 415 | 4 | 960 | 83 | 139 |
18696 | 476 | ||||||
16400 | 550 | ||||||
14760 | 578 | ||||||
13284 | 589 | ||||||
8B | 800 | 27600 | 423 | 5.5 | 960 | 84 | 160 |
26220 | 485 | ||||||
23000 | 564 | ||||||
20700 | 603 | ||||||
18630 | 626 | ||||||
9B | 900 | 32520 | 509 | 7.5 | 960 | 86 | 211 |
30894 | 583 | ||||||
27100 | 670 | ||||||
24390 | 710 | ||||||
21951 | 730 | ||||||
10B | 1000 | 38400 | 635 | 11 | 960 | 88 | 315 |
36480 | 727 | ||||||
32000 | 836 | ||||||
28800 | 886 | ||||||
25920 | 911 | ||||||
11B | 1100 | 40320 | 616 | 11 | 960 | 88 | 332 |
38304 | 705 | ||||||
33600 | 810 | ||||||
30240 | 883 | ||||||
27216 | 907 | ||||||
12B | 1200 | 46200 | 739 | 15 | 960 | 90 | 402 |
43890 | 846 | ||||||
38500 | 972 | ||||||
34650 | 1059 | ||||||
31185 | 1089 | ||||||
13B | 1300 | 52320 | 806 | 18.5 | 960 | 91 | 497 |
49704 | 922 | ||||||
43600 | 1060 | ||||||
39240 | 1155 | ||||||
35316 | 1187 | ||||||
14B | 1400 | 64800 | 798 | 22 | 960 | 91 | 543 |
61560 | 914 | ||||||
54000 | 1050 | ||||||
48600 | 1145 | ||||||
43740 | 1176 |
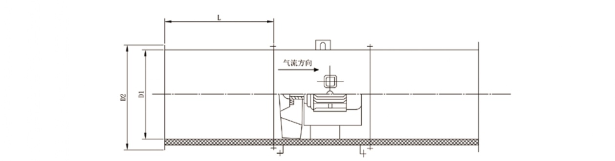
四、GXF系列斜流风机外形及安装尺寸(mm)

机号 | 类别 | D1 | D2 | D3 | L | M1 | M2 | N1 | N2 | n-Φa | Φb | H |
3 | ABCDEF | Φ310 | Φ340 | Φ380 | 320 | 261 | 225 | 220 | 170 | 8-Φ8.5 | Φ11 | 220 |
3.5 | ABCDEF | Φ360 | Φ390 | Φ430 | 320 | 261 | 225 | 220 | 170 | 8-Φ11 | Φ11 | 245 |
F | 400 | 336 | 300 | |||||||||
4 | ABCD | Φ410 | Φ450 | Φ485 | 340 | 294 | 250 | 300 | 240 | 8-Φ11 | Φ11 | 265 |
E | 400 | 344 | 300 | |||||||||
F | 480 | 394 | 350 | |||||||||
4.5 | ABCD | Φ460 | Φ500 | Φ540 | 360 | 394 | 250 | 300 | 240 | 12-Φ11 | Φ11 | 295 |
EF | 480 | 394 | 350 | |||||||||
5 | ABCDE | Φ510 | Φ550 | Φ590 | 420 | 344 | 300 | 400 | 320 | 12-Φ11 | Φ13 | 315 |
F | 560 | 444 | 400 | |||||||||
5.5 | ABCD | Φ560 | Φ600 | Φ640 | 420 | 344 | 300 | 400 | 320 | 12-Φ11 | Φ13 | 355 |
EF | 560 | 444 | 400 | |||||||||
6 | ABCD | Φ610 | Φ650 | Φ694 | 450 | 377 | 325 | 500 | 400 | 12-Φ11 | Φ16 | 380 |
E | 500 | 427 | 375 | |||||||||
F | 700 | 552 | 500 | |||||||||
6.5 | ABC | Φ660 | Φ700 | Φ744 | 450 | 377 | 325 | 500 | 400 | 16-Φ11 | Φ16 | 400 |
DE | 520 | 427 | 375 | |||||||||
F | 700 | 552 | 500 | |||||||||
7 | ABCD | Φ710 | Φ750 | Φ800 | 540 | 462 | 400 | 600 | 480 | 16-Φ11 | Φ16 | 425 |
EF | 680 | 562 | 500 | |||||||||
8 | ABC | Φ810 | Φ850 | Φ900 | 540 | 462 | 400 | 600 | 480 | 16-Φ13 | Φ16 | 490 |
DE | 680 | 560 | 500 | |||||||||
F | 760 | 612 | 550 | |||||||||
9 | AB | Φ910 | Φ950 | Φ1010 | 650 | 537 | 475 | 700 | 580 | 16-Φ13 | Φ16 | 550 |
CDE | 740 | 587 | 525 | |||||||||
F | 800 | 637 | 575 | |||||||||
10 | ABCD | Φ1010 | Φ1060 | Φ1110 | 740 | 587 | 525 | 700 | 580 | 20-Φ13 | Φ16 | 615 |
E | 800 | 637 | 575 | |||||||||
F | 950 | 762 | 700 | |||||||||
11 | ABCD | Φ1110 | Φ1160 | Φ1230 | 750 | 620 | 550 | 800 | 650 | 20-Φ13 | Φ16 | 645 |
E | 820 | 670 | 600 | |||||||||
F | 900 | 720 | 650 | |||||||||
12 | AB | Φ1210 | Φ1260 | Φ1330 | 780 | 645 | 575 | 900 | 750 | 20-Φ13 | Φ19 | 700 |
CD | 820 | 670 | 600 | |||||||||
EF | 980 | 770 | 700 | |||||||||
13 | ABC | Φ1310 | Φ1370 | Φ1430 | 860 | 695 | 625 | 900 | 750 | 20-Φ13 | Φ19 | 750 |
D | 950 | 770 | 700 | |||||||||
EF | 1080 | 845 | 775 | |||||||||
14 | ABC | Φ1410 | Φ1470 | Φ1534 | 950 | 768 | 700 | 1000 | 850 | 20-Φ13 | Φ19 | 800 |
D | 1020 | 818 | 750 | |||||||||
EF | 1140 | 893 | 825 |
五、GXF-BX消声型斜流风机
GXF-BX消音型斜流风机分为两种: GXF-BX1型风机外壳不带消声器, GXF-BX2型风机外壳,进、出风口均带消声器。风机外壳带消声器可消音3-5分贝;进、出风口各带500mm消声器,可消音3-8分贝;进、出风口各带750mm消声器,可消音5-11分贝;进、出风口各带 1000mm消声器,可消音8-14分贝;进、出风口各带2000mm消声器,可消音11-17分贝;消声器长度有500mm, 750mm, 1000mm, 2000m,用户可根据需要自定长度。

GXF-BX1消声型斜流风机安装尺寸(mm)
机号 | 3 | 3.5 | 4 | 4.5 | 5 | 5.5 | 6 | 6.5 | 7 | 8 | 9 | 10 | 11 | 12 | 13 | 14 |
D1 | Φ310 | Φ360 | Φ410 | Φ460 | Φ510 | Φ560 | Φ610 | Φ660 | Φ710 | Φ810 | Φ910 | Φ1010 | Φ1110 | Φ1210 | Φ1410 | Φ1410 |
D2 | Φ380 | Φ430 | Φ485 | Φ540 | Φ590 | Φ640 | Φ694 | Φ744 | Φ800 | Φ900 | Φ1010 | Φ1110 | Φ1230 | Φ1330 | Φ1434 | Φ1534 |

GXF-BX2消声型斜流风机安装尺寸(mm)
机号 | 3 | 3.5 | 4 | 4.5 | 5 | 5.5 | 6 | 6.5 | 7 | 8 | 9 | 10 | 11 | 12 | 13 | 14 |
D1 | Φ310 | Φ360 | Φ410 | Φ460 | Φ510 | Φ560 | Φ610 | Φ660 | Φ710 | Φ810 | Φ910 | Φ1010 | Φ1110 | Φ1210 | Φ1310 | Φ1410 |
D2 | Φ410 | Φ460 | Φ510 | Φ560 | Φ610 | Φ660 | Φ710 | Φ760 | Φ810 | Φ910 | Φ1010 | Φ1110 | Φ1210 | Φ1310 | Φ1410 | Φ1510 |
D3 | Φ480 | Φ530 | Φ585 | Φ640 | Φ690 | Φ740 | Φ794 | Φ844 | Φ900 | Φ1000 | Φ1110 | Φ1210 | Φ1330 | Φ1430 | Φ1534 | Φ1634 |
备注: GXF-BX1. GXF-BX2均以散装形式供货。若用户没有注明,本公司一般不在法兰上打孔,敬请用户注意
六、SJG系列斜流风机概述
SJG型斜流风机,采用鼓形风筒,从而改变气流方向达到斜流,兼有离心式压力系数较高和轴流风机流量系数较大的特点。具有噪声低、耗电省、结构紧凑等特点。
风机按叶轮机号分为200~800mm十几种规格,系列风量由200-25000m3/h,全压由50~1200pa.为满足用户对不同工况点性能调节的需要,可配用变频电机和变频控制器实现无级调速,建议调节频率锁定,在25Hz~50Hz。
为适应防爆环境需要,风机可做成防爆风机,按防爆风机规范制作。
为适应不同场所噪声的要求,风机均可配不同长度的消声器,也可将风机做成包覆式(壳体消音)。
七、SJG系列斜流风机应用
风机可广泛应用于民用建筑、工矿企业、宾馆、饭店、博物馆、体育馆等通风换气场所,特别适用于管道安装空间较小的地方。
八、SJG系列斜流风机性能参数表
机号 | 风量(m3/h) | 全压 (Pa) | 功率(kw) | 转速 (r/min) | 噪声 dB(A) | 重量 (kg) |
2F | 200 | 110 | 0.06 | 1450 | 58 | 16 |
400 | 91 | |||||
500 | 70 | |||||
600 | 54 | |||||
2.5F | 300 | 180 | 0.18 | 1450 | 60 | 24 |
450 | 165 | |||||
600 | 150 | |||||
1000 | 110 | |||||
3F | 500 | 260 | 0.37 | 1450 | 61 | 27 |
750 | 240 | |||||
1500 | 170 | |||||
2000 | 130 | |||||
3.5S | 800 | 140 | 0.25 | 960 | 59 | 42 |
1500 | 100 | |||||
2000 | 80 | |||||
2500 | 50 | |||||
3.5F | 1000 | 320 | 0.55 | 1450 | 61 | 45 |
2000 | 250 | |||||
3000 | 190 | |||||
4000 | 110 | |||||
4S | 1000 | 190 | 0.37 | 960 | 60 | 61 |
2000 | 150 | |||||
3000 | 100 | |||||
4000 | 51 | |||||
4F | 1500 | 420 | 0.75 | 1450 | 62 | 67 |
2500 | 390 | |||||
4000 | 280 | |||||
5000 | 220 | |||||
4.5S | 1500 | 360 | 0.37 | 960 | 61 | 70 |
3000 | 275 | |||||
4000 | 150 | |||||
5000 | 100 | |||||
4.5F | 2000 | 580 | 1.1 | 1450 | 68 | 80 |
4000 | 480 | |||||
6000 | 350 | |||||
7000 | 250 |
机号 | 风量(m3/h) | 全压 (Pa) | 功率(kw) | 转速 (r/min) | 噪声 dB(A) | 重量 (kg) |
5S | 1500 | 360 | 0.75 | 960 | 63 | 90 |
2500 | 290 | |||||
4000 | 240 | |||||
6000 | 150 | |||||
5F | 2000 | 710 | 2.2 | 1450 | 69 | 110 |
4000 | 580 | |||||
7000 | 480 | |||||
10000 | 345 | |||||
6S | 3000 | 480 | 1.5 | 960 | 65 | 150 |
6000 | 360 | |||||
8000 | 297 | |||||
11000 | 240 | |||||
6F | 4000 | 1200 | 5.5 | 1450 | 75 | 165 |
8000 | 870 | |||||
12000 | 690 | |||||
18000 | 380 | |||||
7S | 4000 | 600 | 3 | 960 | 72 | 215 |
8000 | 500 | |||||
15000 | 350 | |||||
18000 | 260 | |||||
8E | 6000 | 700 | 4 | 720 | 68 | 372 |
10000 | 585 | |||||
15000 | 510 | |||||
25000 | 210 | |||||
8S1 | 6000 | 780 | 5.5 | 960 | 71 | 320 |
10000 | 700 | |||||
15000 | 600 | |||||
25000 | 400 | |||||
8S2 | 6000 | 880 | 7.5 | 960 | 72 | 360 |
10000 | 790 | |||||
15000 | 685 | |||||
25000 | 510 |
九、SJG-BX消声型斜流风机
SJG-BX消音型斜流风机分为两种: SJG-BX1型风机外壳不带消声器, SJG-BX2型风机外壳,进、出风口均带消声器。风机外壳带消声器可消音3-5分贝;进、出风口各带500mm消声器,可消音3-8分贝;进、出风口各带750mm消声器,可消音5-11分贝;进、出风口各带 1000mm消声器,可消音8-14分贝;进、出风口各带2000mm消声器, 可消音11-17分贝;消声器长度有500mm, 750mm, 1000mm, 2000mm,用户可根据需要自定长度。

SJG-BX1消声型斜流风机安装尺寸(mm)
机号 | 2 | 2.5 | 3 | 3.5 | 4 | 4.5 | 5 | 6 | 7 | 8 |
D1 | Φ210 | Φ260 | Φ310 | Φ360 | Φ410 | Φ460 | Φ510 | Φ610 | Φ710 | Φ810 |
D2 | Φ280 | Φ330 | Φ380 | Φ430 | Φ485 | Φ540 | Φ590 | Φ694 | Φ800 | Φ900 |

SJG-BX2消声型斜流风机安装尺寸(mm)
机号 | 2 | 2.5 | 3 | 3.5 | 4 | 4.5 | 5 | 6 | 7 | 8 |
D1 | Φ210 | Φ260 | Φ310 | Φ360 | Φ410 | Φ460 | Φ510 | Φ610 | Φ710 | Φ810 |
D2 | Φ280 | Φ330 | Φ380 | Φ430 | Φ485 | Φ540 | Φ590 | Φ694 | Φ800 | Φ900 |
D3 | Φ380 | Φ430 | Φ480 | Φ530 | Φ585 | Φ640 | Φ690 | Φ794 | Φ900 | Φ1000 |
备注: SJG-BX1. SJG-BX2均以散装形式供货。若用户没有注明,本公司一般不在法兰上打孔,敬请用户注意